148 Tilden RoadScituate, MA 02066
Due to the health concerns created by Coronavirus we are offering personal 1-1 online video walkthough tours where possible.




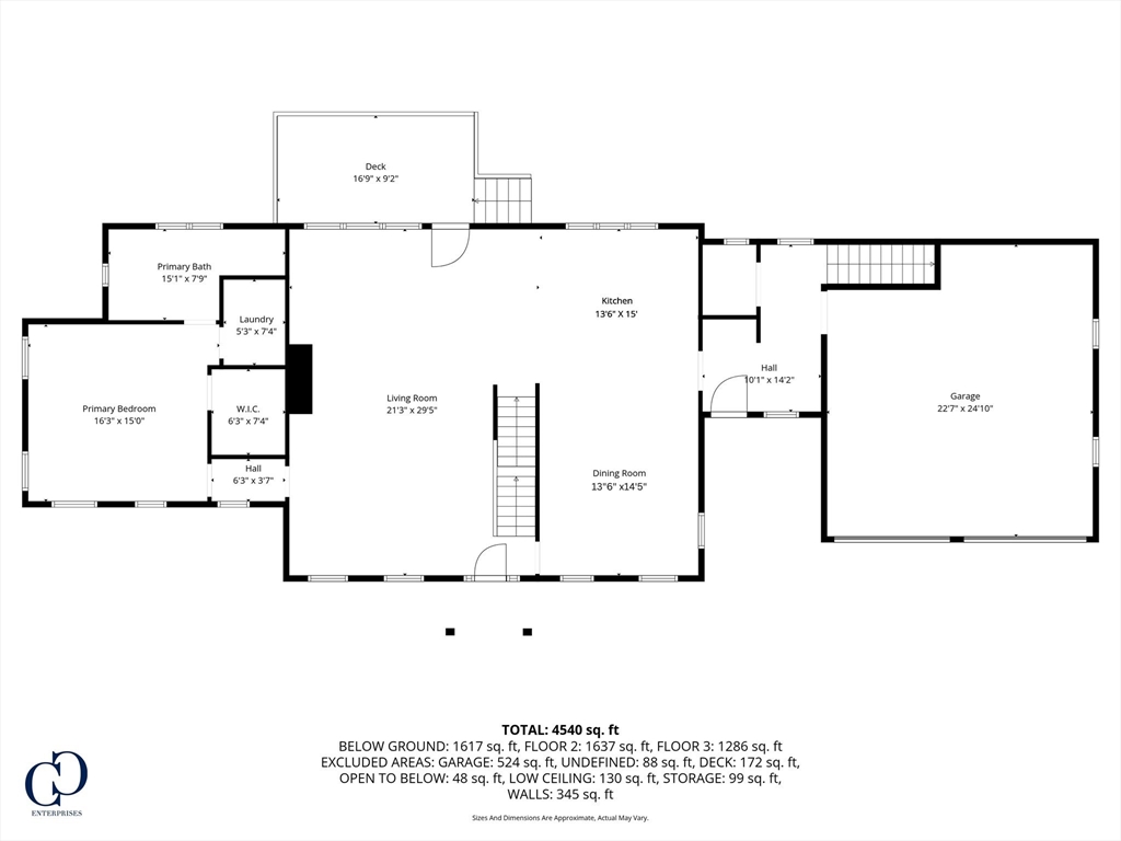
This one checks all of the boxes! Currently under construction and ready for occupancy January 2026. This beautifully crafted single family cape blends timeless architecture with modern comfort. Built by a reputable local builder, this home has been thoughtfully designed for easy living. First floor primary suite with laundry hookup allows for one floor living. Three generous size bedrooms on the second floor with full bath and additional laundry room. Bonus room over the garage offers flexible space for recreation, work space, or overflow guests. Chefs kitchen includes a suite of Viking appliances including 48" gas range and large center island for entertaining. Spacious full walkout unfinished basement with windows and heigh ceilings. Private back deck and low maintenance charming yard area perfect for busy lifestyles. Conveniently located 1/2 mile to Wampatuck elementary school, 2 miles to Scituate Harbor and to the commuter rail, and less than one mile to the beach.
3 weeks ago | Listing updated with changes from the MLS® | |
4 weeks ago | Listing first seen on site |

The property listing data and information, or the Images, set forth herein were provided to MLS Property Information Network, Inc. from third party sources, including sellers, lessors, landlords, and public records, and were compiled by MLS Property Information Network, Inc. The property listing data and information, and the Images, are for the personal, non-commercial use of consumers having a good faith interest in purchasing, leasing or renting listed properties of the type displayed to them and may not be used for any purpose other than to identify prospective properties which such consumers may have a good faith interest in purchasing, leasing or renting. MLS Property Information Network, Inc. and its subscribers disclaim any and all representations and warranties as to the accuracy of the property listing data and information, or as to the accuracy of any of the Images, set forth herein.
Last checked 2025-10-18 07:07 PM UTC
Did you know? You can invite friends and family to your search. They can join your search, rate and discuss listings with you.